Witam!
w związku z tym, że moje s13 nie chce odpalić mam kilka pytań.
Szukajką się bawiłem ale nic ciekawego nie znalazlem, do tego raczej zalezy mi na czasie b zaraz zacznie robić się ciemno.
Więc tak...
Czy s13 posiada czujnik położenia WAŁU KORBOWEGO?!
jeśli tak to gdzie dokładnie jest.
wiem, że jest CAS ale czy oprócz tego jest jeszcze czujnik na wale?
gdzie jest drugi koniec kabla, który idzie do wtrysków?
kabel ten znika mi z oczu w okolicach kielicha od strony pasażera.
gdzie jest bezpiecznik od wtrysków?
narazie to by było na tyle... później opiszę problem.
s13 - Wszystko się 'zgadza' a samochód nie odpala.
Moderator: Moderator
Siema. Nie ma wiecej tych czujniczkow. Jest tylko CAS.
A nie odpala moze dlatego ze ci sie rozrzad przestawil. Sprawdz to i iskre na swiecach. Jesli nie ma to moze PT sie rozwalil.
Jesli sa zalane i jest mala iskra to rozrzad.
Spradz tez bezpiecznik pompy paliwa. Jest w tej pyszce przy kielichu od strony pasazera.
Nie bezpiecznikow od wtryskow, albo ja nie slyszalm.
A nie odpala moze dlatego ze ci sie rozrzad przestawil. Sprawdz to i iskre na swiecach. Jesli nie ma to moze PT sie rozwalil.
Jesli sa zalane i jest mala iskra to rozrzad.
Spradz tez bezpiecznik pompy paliwa. Jest w tej pyszce przy kielichu od strony pasazera.
Nie bezpiecznikow od wtryskow, albo ja nie slyszalm.
- roball
- Postojebca Nałogowy

- Posty: 3140
- Rejestracja: śr 29 cze, 2005 21:33
- Lokalizacja: dziura na zachód od Wieliczki
Jeżeli silnik chce załapać ale mu się to nie udaje to sprawdź przepływkę
odepnij i zapnij kostkę - jeśli to brak styku to silnik powinien ożyć
odepnij i zapnij kostkę - jeśli to brak styku to silnik powinien ożyć
Człowiek człowiekowi wilkiem,
a zombie zombie zombie...
a zombie zombie zombie...
- m0rr1s
- Postojebca

- Posty: 1079
- Rejestracja: wt 15 sty, 2008 20:25
- Lokalizacja: od o. Rydzyka
- Kontakt:
wiec opisze sytuacje...
ogólnie po miescie zrobilem z 30km, zjechalem do domu i przypomnialo mi sie ze mialem do biedronki zajrzec. Wjechalem na parking i tocząc się na luzie 10km/h silnik nagle zgasł, bez żadnego dławienia się itp. zatrzymalem sie probujac go odpalic, ale nic. doslownie nic.
zepchnalem go na parking i dobralem sie do cewek. Niestety z braku klucza do świec jak i wolnej świecy pod ręką sprawdzanie 'iskry' wygladalo troche dziwnie, ale mam powody żeby twierdzić, że iskra jest. Otóż trzymając imbusa kombinerkami wsunąłem go do cewki i przysunąłem do masy. W tym czasie osoba trzecia zakrecila rozrusznikiem. Przeskoku iskry do masy nie bylo ale mnie niezle kopnelo - mimo izolacji na kombinerkach
na jutro bedzie klucz do świec to sprawdze czy iskra jest napewno. Ale mysle ze raczej bedzie.
Postaram się też załatwić lampę stroboskopową to sprawdze czy zaplon wypada w odpowiednim momencie, ale mam takie dziwne wrazenie ze samochod nie dostaje paliwa.
Na wszystkie próby odpalenia tylko raz zagadał przez sekunde na jednego gara, a poza tym cisza.
Zaraz ide nabyć miernik i jutro sprawdzam czy wtryski dostają prąd...
ps, co to jest za czarna puszeczka miedzy kielichem a ścianą grodziową od strony pasażera?
ogólnie po miescie zrobilem z 30km, zjechalem do domu i przypomnialo mi sie ze mialem do biedronki zajrzec. Wjechalem na parking i tocząc się na luzie 10km/h silnik nagle zgasł, bez żadnego dławienia się itp. zatrzymalem sie probujac go odpalic, ale nic. doslownie nic.
zepchnalem go na parking i dobralem sie do cewek. Niestety z braku klucza do świec jak i wolnej świecy pod ręką sprawdzanie 'iskry' wygladalo troche dziwnie, ale mam powody żeby twierdzić, że iskra jest. Otóż trzymając imbusa kombinerkami wsunąłem go do cewki i przysunąłem do masy. W tym czasie osoba trzecia zakrecila rozrusznikiem. Przeskoku iskry do masy nie bylo ale mnie niezle kopnelo - mimo izolacji na kombinerkach
na jutro bedzie klucz do świec to sprawdze czy iskra jest napewno. Ale mysle ze raczej bedzie.
Postaram się też załatwić lampę stroboskopową to sprawdze czy zaplon wypada w odpowiednim momencie, ale mam takie dziwne wrazenie ze samochod nie dostaje paliwa.
Na wszystkie próby odpalenia tylko raz zagadał przez sekunde na jednego gara, a poza tym cisza.
Zaraz ide nabyć miernik i jutro sprawdzam czy wtryski dostają prąd...
ps, co to jest za czarna puszeczka miedzy kielichem a ścianą grodziową od strony pasażera?
Hmmm... Dziwne. Ja mialem tak jak mi swiece zalewalo przez nie ustawiony zozrzad. A smierdzi paliwem z wydechu, albo wogole z okolic silnika? Jesli nie to masz pewnie padniety bezpiecznik od pompy lub sama pompe. Przekrec kluczyk zeby ci sie kontrolki zaswiecily i zobacz czy pompka chodzi. Napewno ja uslyszysz. Jesli nie to znaczy ze albo bezpiecznik albo ona padla.
- m0rr1s
- Postojebca

- Posty: 1079
- Rejestracja: wt 15 sty, 2008 20:25
- Lokalizacja: od o. Rydzyka
- Kontakt:
pompa chodzi, na to akurat mam wyczulony sluch bo gubila mi zasilanie 
nad silnikiem nie śmierdzi mi paliwem, z wydechu... cos tam czuć wachą, ale nie wiem czy to przez to że zalany czy dlatego, bo wczesniej chodzil normalnie...
jakie napięcie idzie na wtryski? wtykając żarówkę w kostkę chyba powinna mi mrugnac jesli wtrysk dostaje prąd? ;]
nad silnikiem nie śmierdzi mi paliwem, z wydechu... cos tam czuć wachą, ale nie wiem czy to przez to że zalany czy dlatego, bo wczesniej chodzil normalnie...
jakie napięcie idzie na wtryski? wtykając żarówkę w kostkę chyba powinna mi mrugnac jesli wtrysk dostaje prąd? ;]
tematy30/eccs-podzespoy-vt9038.htm?sid= ... cbee32d35c
Poczytaj sobie. Masz wszystko o sprawdzaniu wtrysku. Najlepiej bys zrobil jesli bys wykrecil swiece i obczail czy jest zalana.
Poczytaj sobie. Masz wszystko o sprawdzaniu wtrysku. Najlepiej bys zrobil jesli bys wykrecil swiece i obczail czy jest zalana.
- roball
- Postojebca Nałogowy

- Posty: 3140
- Rejestracja: śr 29 cze, 2005 21:33
- Lokalizacja: dziura na zachód od Wieliczki
o ile mi wiadomo to na wtrysku zawsze jest 12V - sterowanie jest masą,m0rr1s pisze: jakie napięcie idzie na wtryski? wtykając żarówkę w kostkę chyba powinna mi mrugnac jesli wtrysk dostaje prąd? ;]
więc nic ci nie da zmierzenie napięcia...
sprawdź tę przepływkę - jeśli silnik ci zagadał to jest prawdopodobne że ona daje po dupie..
działanie wtrysków możesz sprawdzić przez wyjęcie CAS'a (ale bez odpinania kabla) - kręcisz ośką i wtryski powinny cykać (na włączonym zapłonie)
jak do tego sprawdzisz ciśnienie paliwa to możesz wyeliminować układ paliwowy jak źródło problemu
Człowiek człowiekowi wilkiem,
a zombie zombie zombie...
a zombie zombie zombie...
- m0rr1s
- Postojebca

- Posty: 1079
- Rejestracja: wt 15 sty, 2008 20:25
- Lokalizacja: od o. Rydzyka
- Kontakt:
pytanie minimalnie z innej beczki... którędy (dokładna droga od aku mile widziana) jest dostarczany (+) do wtrysków...
po oględzinach stwierdziłem, że minus jest... tylko z przyczyn niewiadomych na obu wtykach w kostce.
po oględzinach stwierdziłem, że minus jest... tylko z przyczyn niewiadomych na obu wtykach w kostce.
Witam
Widzę że uparcie chcesz dorwać sie do wtrysków, zrób jak Ci napisał Roball, jak będą cykać to je wyeliminujesz, będziesz sie nimi martwił jak nie będą, na razie wykręć świece, ocen w jakim są stanie, możesz je delikatnie wyczyścić oraz przed zamontowaniem położyc na czymś gorącym, możesz je delikatnie w domu ogrzać nad palnikiem. Wcześniej jeszcze przed zakręceniem świec sprawdź czy dochodzi Ci paliwo, po lewej stronie masz przy grodzi filtr paliwa, zściągnij przewód za filtrem i niech Ci ktoś włączy zapłon, powinno trysnąc paliwem, jak nie to pompa padła, jak tak to założ węża wkręć świece, a i jeszcze przed odpaleniem, po prawej stronie na nadkolu masz power transistor i do niego wchodzą dwie wtyczki, wyczep je i popsikaj preparatem do inst. elektrycznych, odczekaj az sie wgryzie preparat załóż wtyczki i odpal auto
.
Czasem jednak proste metody moga nie pomóc, przy nissanie dobrą metodą jest stojący obok drugi sprawny i przekręcanie części, przpływka, czujnik temp. power transistor itp., najważniejsze żebyś zdiagnozował czy jest paliwo, iskra, jak oba te elemety będą to już połowa sukcesu. Zdarza sie że masz to i to i dalej nie odpali, mi pare razy juz wybrały auto na wtrysku, klient przyjechał na lawecie bo mu auto zgasło i nie odpali, iskara jest, paliwo jest, wtedy biore auto na line, i okazuje sie ze odpala dosłowanie za pare metrów, i pózniej juz odpala codzień, czarna magia,
, coś je zabolało, przewaznie właśnie jest chwilowe niedomaganie, klient kreci, zalewa świece, o dopiero pod obciążeniem ruszy. Popatrz u siebie czy może taaka metoda pomoze, jak odpali będe sie cieszył jak nie to pisz dalej , wspólnie z chłopakami damy rade
.
Widzę że uparcie chcesz dorwać sie do wtrysków, zrób jak Ci napisał Roball, jak będą cykać to je wyeliminujesz, będziesz sie nimi martwił jak nie będą, na razie wykręć świece, ocen w jakim są stanie, możesz je delikatnie wyczyścić oraz przed zamontowaniem położyc na czymś gorącym, możesz je delikatnie w domu ogrzać nad palnikiem. Wcześniej jeszcze przed zakręceniem świec sprawdź czy dochodzi Ci paliwo, po lewej stronie masz przy grodzi filtr paliwa, zściągnij przewód za filtrem i niech Ci ktoś włączy zapłon, powinno trysnąc paliwem, jak nie to pompa padła, jak tak to założ węża wkręć świece, a i jeszcze przed odpaleniem, po prawej stronie na nadkolu masz power transistor i do niego wchodzą dwie wtyczki, wyczep je i popsikaj preparatem do inst. elektrycznych, odczekaj az sie wgryzie preparat załóż wtyczki i odpal auto
Czasem jednak proste metody moga nie pomóc, przy nissanie dobrą metodą jest stojący obok drugi sprawny i przekręcanie części, przpływka, czujnik temp. power transistor itp., najważniejsze żebyś zdiagnozował czy jest paliwo, iskra, jak oba te elemety będą to już połowa sukcesu. Zdarza sie że masz to i to i dalej nie odpali, mi pare razy juz wybrały auto na wtrysku, klient przyjechał na lawecie bo mu auto zgasło i nie odpali, iskara jest, paliwo jest, wtedy biore auto na line, i okazuje sie ze odpala dosłowanie za pare metrów, i pózniej juz odpala codzień, czarna magia,
- m0rr1s
- Postojebca

- Posty: 1079
- Rejestracja: wt 15 sty, 2008 20:25
- Lokalizacja: od o. Rydzyka
- Kontakt:
witam! z Roballem utrzymuje staly kontakt na temat stanu i postępu przy Nismo, wiekszosc rzeczy zostala juz sprawdzona, pytam o (+) od wtryskow bo u mnie ewidentnie go brakuje, a kable prawdopodobnie robią zwarę. Jutro sprawdzam kompa.
jak już mówiłem na kostce od wtrysku mam masę ale brakuje mi + w drugim jej styku.
z obserwacji wiem, ze sterowanie wtryskiem zachodzi za pomocą właśnie masy wiec + gdzieś mi zaginął w akcji. dlatego też potrzebuje cala droge plusa od aku aż do wtrysku.
znalazlem schemat na EF & EC 8 ale... uhm....... jakby ktos mogl to przelozyc bardziej na polski =D
Edit, pompa dziala, wężyka nie sciagalem bo sciskajac go slychac i czuc przeplyw wachy, pressure regulator tez raczej trzyma bo po wylaczeniu sie pompy ciśnienie w przewodzie jest nadal.
dziś kumpel z miernikiem walczyl i po wskazaniach stwierdzil zwarcie, byl przekonany w 99% ;]
jak już mówiłem na kostce od wtrysku mam masę ale brakuje mi + w drugim jej styku.
z obserwacji wiem, ze sterowanie wtryskiem zachodzi za pomocą właśnie masy wiec + gdzieś mi zaginął w akcji. dlatego też potrzebuje cala droge plusa od aku aż do wtrysku.
znalazlem schemat na EF & EC 8 ale... uhm....... jakby ktos mogl to przelozyc bardziej na polski =D
Edit, pompa dziala, wężyka nie sciagalem bo sciskajac go slychac i czuc przeplyw wachy, pressure regulator tez raczej trzyma bo po wylaczeniu sie pompy ciśnienie w przewodzie jest nadal.
dziś kumpel z miernikiem walczyl i po wskazaniach stwierdzil zwarcie, byl przekonany w 99% ;]
- TiGRA
- Postojebca

- Posty: 1777
- Rejestracja: pt 06 lip, 2007 11:17
- Lokalizacja: Kórnik /k. Poznania
- Kontakt:
Witam
W kwestii twojej prośby o tłumaczenie...
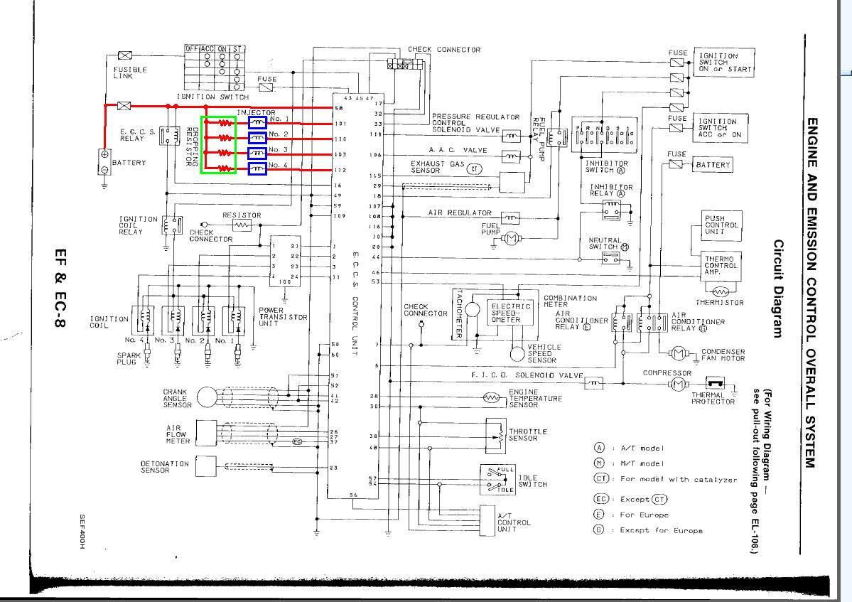
Ponizej jest screen z zaznaczonymi na niebiesko wtryskami (INJECTOR) i czymś co nazywają fachowo DROPPING RESISTOR //zielony//, czyli najprosciej jak się da, odcinka napięcia dla wtrysków.
Jeśli pisze głupoty to niech mnie ktos poprawi.
Ustrojstwo to znajdziesz w okolicy filtra powietrza. Jest to rostopadłościenna puszka aluminiowa z uchwytami po bokach i dziurą na przodzie przez którą widac jakieś blaszki.
Może to masz uszkodzone. Z tego co się orientuję jeśli blaszki są wciśnięte (czytaj: nie wystają) to zapomnij o (+) na wtryskach.
Pozdrawiam
W kwestii twojej prośby o tłumaczenie...
Ponizej jest screen z zaznaczonymi na niebiesko wtryskami (INJECTOR) i czymś co nazywają fachowo DROPPING RESISTOR //zielony//, czyli najprosciej jak się da, odcinka napięcia dla wtrysków.
Jeśli pisze głupoty to niech mnie ktos poprawi.
Ustrojstwo to znajdziesz w okolicy filtra powietrza. Jest to rostopadłościenna puszka aluminiowa z uchwytami po bokach i dziurą na przodzie przez którą widac jakieś blaszki.
Może to masz uszkodzone. Z tego co się orientuję jeśli blaszki są wciśnięte (czytaj: nie wystają) to zapomnij o (+) na wtryskach.
Pozdrawiam
Powyższy post wyraża jedynie opinię autora w dniu dzisiejszym. Nie może on służyć przeciwko niemu w dniu jutrzejszym, ani każdym innym dniu następującym po tym terminie. Ponadto autor zastrzega sobie prawo zmiany poglądów, bez podawania przyczyny.
- m0rr1s
- Postojebca

- Posty: 1079
- Rejestracja: wt 15 sty, 2008 20:25
- Lokalizacja: od o. Rydzyka
- Kontakt:
dzieki TiGRA za trop !
Problem tkwił we wcześniej drutowanym [nie przeze mnie] kabelku.
Mała wiązka kabli idąca właśnie do tego pierdzielnika o którym wspomniałeś byla juz wczesniej rozbierana - zastanawialem sie po co. Jak się dziś okazało kabel koloru czerwonego był wcześniej z jakichś przyczyn cięty i skręcony na nowo. Niestety izolacja sie przepalila, a kabel sie rozlaczyl.
Przy okazji jakby sie ktos tymi kablami po coś jednak chciał zająć to czerwony jest od zasilania dropping resistora, a cała reszta tam idąca w dropping resistorze dostaje prąd od czerwonego ;]
wprawdzie samochodu jeszcze nie odpalilem, ale to przez to, że zdejmowalem CAS, który niestety ma uwalony półklin. Ale wtryski wyraźnie cykają
jeszcze raz dzieki!
Problem tkwił we wcześniej drutowanym [nie przeze mnie] kabelku.
Mała wiązka kabli idąca właśnie do tego pierdzielnika o którym wspomniałeś byla juz wczesniej rozbierana - zastanawialem sie po co. Jak się dziś okazało kabel koloru czerwonego był wcześniej z jakichś przyczyn cięty i skręcony na nowo. Niestety izolacja sie przepalila, a kabel sie rozlaczyl.
Przy okazji jakby sie ktos tymi kablami po coś jednak chciał zająć to czerwony jest od zasilania dropping resistora, a cała reszta tam idąca w dropping resistorze dostaje prąd od czerwonego ;]
wprawdzie samochodu jeszcze nie odpalilem, ale to przez to, że zdejmowalem CAS, który niestety ma uwalony półklin. Ale wtryski wyraźnie cykają
jeszcze raz dzieki!


